PASSERELLE DU PETIT QUAI │MOREZ (39)

MAÎTRISE D’OUVRAGE COMMUNE NOUVELLE DE HAUTS-DE-BIENNE

MAÎTRISE D’ŒUVRE À PART ARCHITECTES MANDATAIRES, PMM SYNERGIES & SOLUTIONS BET

PROGRAMME CONSTRUCTION D’UNE PASSERELLE ARTISTIQUE SUR LA BIENNE INTÉGRÉE DANS UN PARCOURS PAYSAGÉ

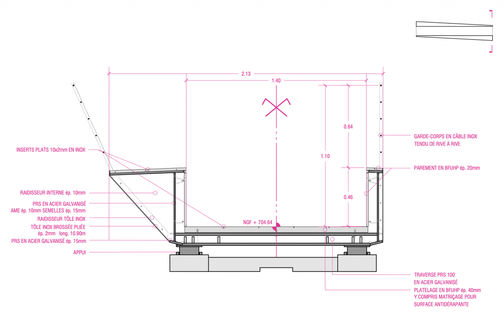
LONGUEUR 11 m

LARGEUR 2.4 m

COÛT 100 000 € HT

AVANCEMENT CHANTIER EN COURS, LIVRAISON 2025

CRÉDITS © À PART ARCHITECTES 

A PART ARCHITECTES
A PART ARCHITECTES
A PART ARCHITECTES
A-part-architectes Morez plan situation
A PART ARCHITECTES
A PART ARCHITECTES
A PART ARCHITECTES
A-part-architectes Morez axonométrie